A Rare South London Opportunity.
Build Your Dream Home on Babington Road, Zone 3, London, SW16.
A unique opportunity has arrived for those seeking to design and build their own home in one of South London’s most desirable neighbourhoods. A new serviced plot has launched on Babington Road, offering buyers the chance to create a bespoke residence within a peaceful, community-led setting — all while remaining perfectly connected to the capital.
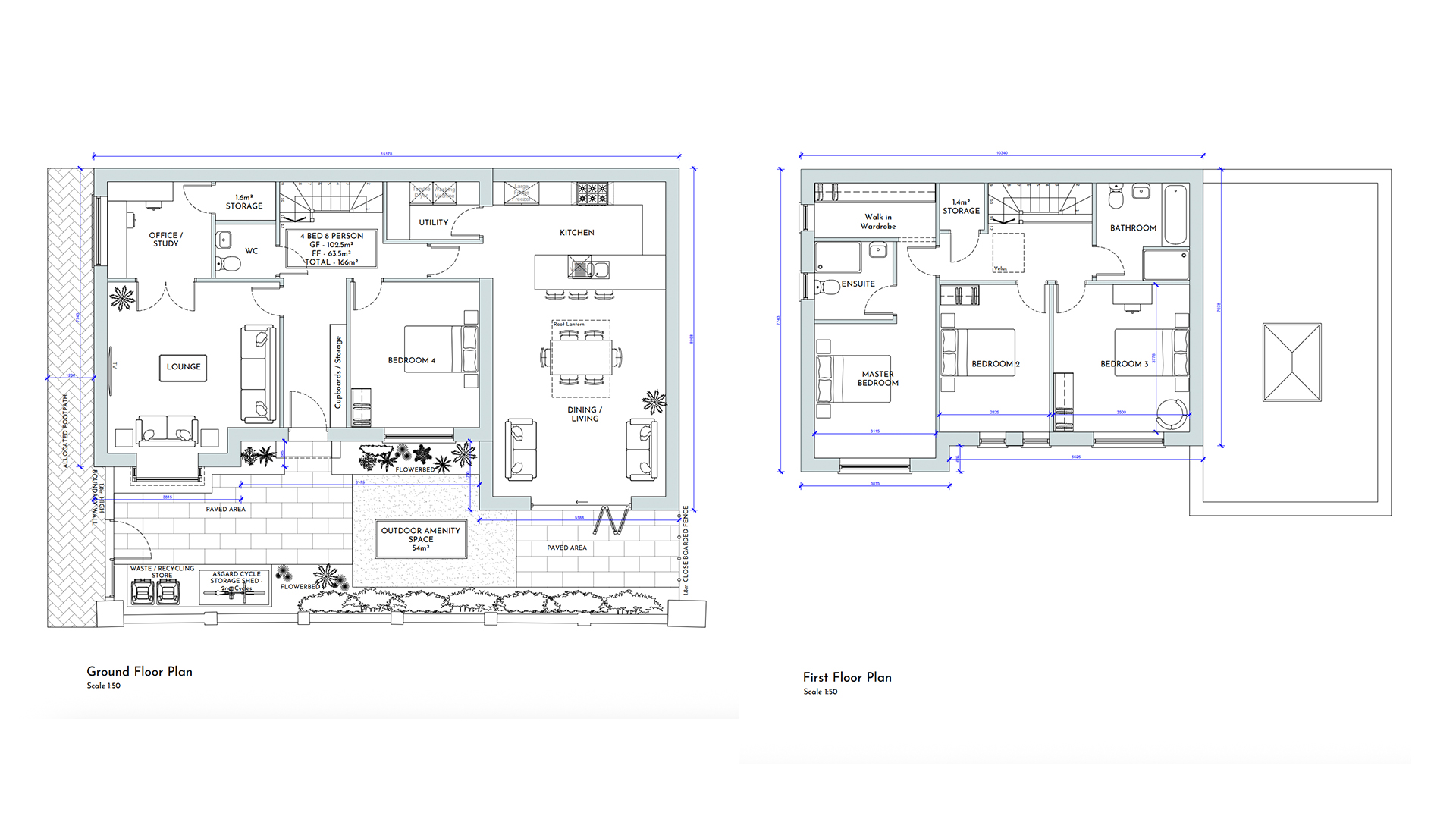
Nestled on a quiet, tree-lined street just moments from Balham, Clapham and Tooting, the plot sits within a no-vehicle zone, prioritising pedestrian and cycle access for a calmer, greener living experience. With 166m² of permitted house space on a 288m² plot, the opportunity combines urban convenience with village-like tranquillity — a rare balance in today’s property market.
“This is a chance to own and design something truly individual in one of London’s most liveable areas,” says Tom Connor, CEO of Custom Build Homes. “Opportunities like this — where you can build your own architect-designed home in a central location — are incredibly limited. Babington Road represents the next generation of city living: sustainable, connected, and personal.”
Priced at £590,000, the plot offers a significant potential stamp duty saving of £54,250 compared to purchasing a completed home at an equivalent value of £1.3 million — adding financial appeal to an already unique prospect.
Lifestyle and Location
Babington Road sits just a short stroll from Tooting Bec Common, with its open green spaces, lido, and local cafés creating an ideal backdrop for family life. The surrounding area benefits from a vibrant mix of independent shops, restaurants, and transport links — with Balham Station (Northern Line and National Rail) providing direct connections to London Waterloo and Victoria in under 20 minutes.
The Future of Urban Custom Building
Custom Build Homes, the UK’s leading specialist in serviced plots, will manage the marketing and buyer support for Babington Road. The project aligns with a growing movement toward self-build and custom housing, giving individuals more choice over how they live and invest in the city.
Interested buyers can explore full details and register their interest here:









