Description
A Private Estate Where Vision Becomes Reality
Welcome to The Aviary — an exclusive collection of five serviced building plots on the southern edge of Fowlmere, Cambridgeshire. Here, individuality, space, and countryside living come together to create a rare opportunity: the freedom to design and build your perfect home.
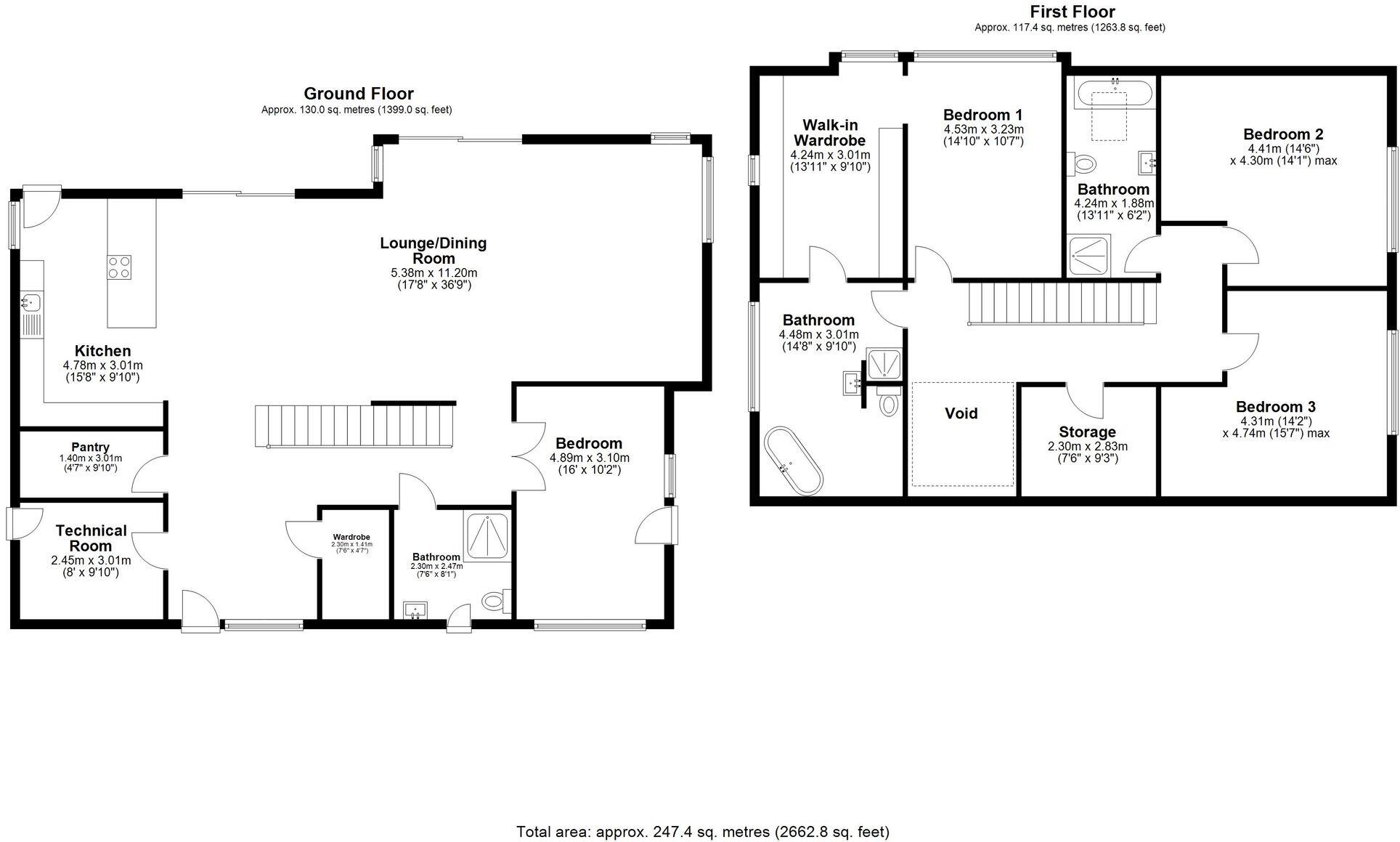
Each plot is fully serviced and comes with planning permission for a substantial detached residence. Whether you choose to commission a pre-approved design or work with your own architect to create something entirely bespoke, The Aviary gives you the foundation for a home that is truly yours. The home shown in the gallery is an example of the type of home you could build.
Plot 4
A substantial plot with excellent proportions and countryside outlook.
- Plot size: 2023 m² (0.53 acres / 21,780 sq ft)
- Permitted house size: up to 372 m² (4,000 sq ft)
- Bedrooms: 5
- Stamp Duty Saving: £98,250
- Equity Gain + Stamp Saving: £198,250
The ExperienceThis is self-build reimagined. At The Aviary, you design your ideal home — we help manage the process. Whether you adopt an existing design or create something entirely unique, you’ll work with skilled professionals to bring your vision to life. Every element is carefully managed to ensure peace of mind and an exceptional finish.
The Location
Nestled in the sought-after village of Fowlmere, The Aviary combines rural tranquility with superb connectivity. Meldreth and Foxton stations are just 2.5 miles away, offering fast connections to Cambridge (8 minutes) and London King’s Cross (42 minutes). Local amenities, excellent schools, and scenic countryside walks are all on your doorstep.
Availability
Plots 1–5 now released.
Opportunities are strictly limited — early enquiries recommended.
View The Avairy Webpage
View The Aviary Sales Brochure
